Details
Main Street, Stamford, PE9
Guide price £680,000
Description
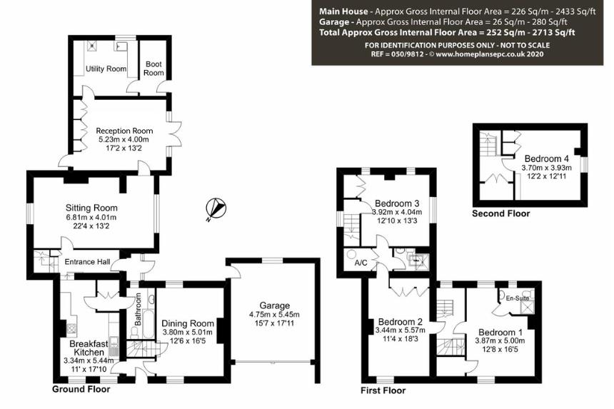
The Maltings is an attractive Grade II listed, village home of mellow stone construction under a Collyweston roof.The versatile accommodation is arranged over three floors offering three generous reception rooms, four double bedrooms and three bathroom/shower rooms.Gardens to the front and rear are well tended and stocked with an extensive array of mature plants and shrubbery, while a large driveway provides excellent parking space leading to a double garage.
An entrance hall provides access to a large dining room with original chimney breast and dual aspect windows overlooking both the courtyard and the front garden. A ledge and braced door opens to one of the two staircases leading up to the first floor.
On the opposite side of the hallway is a well equipped breakfast kitchen offering an extensive range of wall and floor standing cabinets under granite work surfaces. Directly off the kitchen is an inner lobby with tiled floor and larder/pantry cupboard.
To the rear of the lobby sits a ground floor bathroom with a contemporary oak vanity sink, panelled bath with shower over and wc.
An inner hallway has a secondary staircase to the first floor and a door to the rear garden.
The peaceful sitting room is dual aspect with very pleasant views over the rear garden and offers some lovely period features such as exposed stone walls and a wood burning stove housed in a deep chimney breast.
A step up leads to a further reception room with pretty French doors leading out into the sheltered south westerly facing courtyard and garden. Full height cupboards offer extensive storage space and a small door leads out to the side garden.
To the rear of the property is a large utility room housing the oil fired central heating boiler. This practical space has an extensive range of wall and floor standing cabinets, a Butlers sink and space for white goods.
Directly off the utility is a boot room with a door to the rear garden, making it a perfect place for muddy boot and wet dogs!
And so to bed..........
On the first floor there are three double bedrooms.
The dual aspect Principle bedroom is of a very generous size and has a walk in wardrobe, and tiled en suite shower room.
Bedrooms two and three each have in built wardrobes and share a Jack and Jill shower room. Bedroom three has access to the ground floor via a secondary staircase.
On the second floor is a large fourth bedroom which has in built wardrobes and book shelves.
Step Outside
The property is set back from the road behind a retaining wall and lawn garden with mature plants and shrubbery. A wide driveway provides ample parking space and leads to a stone built double garage with electric up and over door. A pedestrian gate provides access to the rear of the property.
To the rear of the property is a most charming south west facing garden and courtyard area.
The courtyard is a combination of shingle and stone terrace interspersed with plants and shrubs offering a very sheltered space for outdoor entertaining.
A well tended lawn area with herbaceous boarders and fruit trees wraps around the property to a pretty side garden.
Local Amenities
Belmesthorpe is a pretty hamlet situated just 3 miles to the north of the Georgian market town of Stamford, with an eclectic mix of shops, including an M&S and Waitrose and its many cultural and sporting activities.
Leisure pursuits in the vicinity including golf at Burghley Park, Luffenham Heath, Toft and Greetham are close by. Rutland Water with its nature reserve, water sports, cycling and trout fishing is some 8 miles to the west. Schooling in the area is excellent with both primary and senior levels; Witham Hall and Copthill are close by, with Stamford, Oakham, Uppingham and Oundle within easy distance.
Finer Details
Local Authority: Rutland County Council
Council Tax Band: F
Tenure: Freehold
Possession: Vacant upon completion
Services: Mains water, drainage, and electric are understood to be connected. The property has oil fired central heating. (none tested by the agent).
Fixtures & Fittings: Every effort has been made to omit any fixtures belonging to the Vendor in the description of the property and the property is sold subject to the Vendor's right to the removal of, or payment for, as the case may be, any such fittings, etc. whether mentioned in these particulars or not.
Viewing
Please contact us on 01780 758 090 if you wish to arrange a viewing appointment for this property, or require further information.
Disclaimer
Digby & Finch endeavour to maintain accurate depictions of properties in Virtual Tours, Floor Plans and descriptions, however, these are intended only as a guide and purchasers must satisfy themselves by personal inspection.
The Maltings is an attractive Grade II listed, village home of mellow stone construction under a Collyweston roof.The versatile accommodation is arranged over three floors offering three generous reception rooms, four double bedrooms and three bathroom/shower rooms.Gardens to the front and rear are well tended and stocked with an extensive array of mature plants and shrubbery, while a large driveway provides excellent parking space leading to a double garage.
An entrance hall provides access to a large dining room with original chimney breast and dual aspect windows overlooking both the courtyard and the front garden. A ledge and braced door opens to one of the two staircases leading up to the first floor.
On the opposite side of the hallway is a well equipped breakfast kitchen offering an extensive range of wall and floor standing cabinets under granite work surfaces. Directly off the kitchen is an inner lobby with tiled floor and larder/pantry cupboard.
To the rear of the lobby sits a ground floor bathroom with a contemporary oak vanity sink, panelled bath with shower over and wc.
An inner hallway has a secondary staircase to the first floor and a door to the rear garden.
The peaceful sitting room is dual aspect with very pleasant views over the rear garden and offers some lovely period features such as exposed stone walls and a wood burning stove housed in a deep chimney breast.
A step up leads to a further reception room with pretty French doors leading out into the sheltered south westerly facing courtyard and garden. Full height cupboards offer extensive storage space and a small door leads out to the side garden.
To the rear of the property is a large utility room housing the oil fired central heating boiler. This practical space has an extensive range of wall and floor standing cabinets, a Butlers sink and space for white goods.
Directly off the utility is a boot room with a door to the rear garden, making it a perfect place for muddy boot and wet dogs!
And so to bed..........
On the first floor there are three double bedrooms.
The dual aspect Principle bedroom is of a very generous size and has a walk in wardrobe, and tiled en suite shower room.
Bedrooms two and three each have in built wardrobes and share a Jack and Jill shower room. Bedroom three has access to the ground floor via a secondary staircase.
On the second floor is a large fourth bedroom which has in built wardrobes and book shelves.
Step Outside
The property is set back from the road behind a retaining wall and lawn garden with mature plants and shrubbery. A wide driveway provides ample parking space and leads to a stone built double garage with electric up and over door. A pedestrian gate provides access to the rear of the property.
To the rear of the property is a most charming south west facing garden and courtyard area.
The courtyard is a combination of shingle and stone terrace interspersed with plants and shrubs offering a very sheltered space for outdoor entertaining.
A well tended lawn area with herbaceous boarders and fruit trees wraps around the property to a pretty side garden.
Local Amenities
Belmesthorpe is a pretty hamlet situated just 3 miles to the north of the Georgian market town of Stamford, with an eclectic mix of shops, including an M&S and Waitrose and its many cultural and sporting activities.
Leisure pursuits in the vicinity including golf at Burghley Park, Luffenham Heath, Toft and Greetham are close by. Rutland Water with its nature reserve, water sports, cycling and trout fishing is some 8 miles to the west. Schooling in the area is excellent with both primary and senior levels; Witham Hall and Copthill are close by, with Stamford, Oakham, Uppingham and Oundle within easy distance.
Finer Details
Local Authority: Rutland County Council
Council Tax Band: F
Tenure: Freehold
Possession: Vacant upon completion
Services: Mains water, drainage, and electric are understood to be connected. The property has oil fired central heating. (none tested by the agent).
Fixtures & Fittings: Every effort has been made to omit any fixtures belonging to the Vendor in the description of the property and the property is sold subject to the Vendor's right to the removal of, or payment for, as the case may be, any such fittings, etc. whether mentioned in these particulars or not.
Viewing
Please contact us on 01780 758 090 if you wish to arrange a viewing appointment for this property, or require further information.
Disclaimer
Digby & Finch endeavour to maintain accurate depictions of properties in Virtual Tours, Floor Plans and descriptions, however, these are intended only as a guide and purchasers must satisfy themselves by personal inspection.
Share
Request aValuation
Thinking of selling your property? Request a free property valuation today.

