Details
Maxey Road, Peterborough, PE6
Guide price £660,000
Description
Set quietly within the heart of the historic and much-admired village of Helpston, The Chimes is a most appealing dormer bungalow, combining its 1930s origins with later thoughtful additions to create a home of charm, balance and versatility.Occupying a particularly attractive position, the property is framed by beautifully tended, south-westerly facing walled gardens, with the magnificent stained-glass window of St Botolph’s Church providing a truly captivating backdrop. A rare and rather special setting that lends both character and a sense of place.
Step Inside
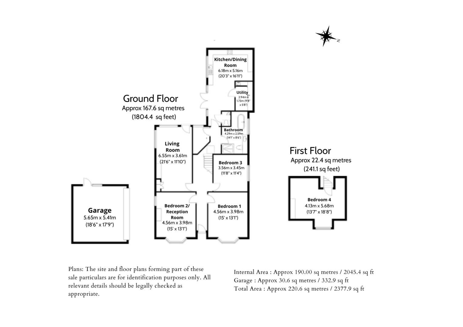
The accommodation is both generous and flexible, ideally suited to modern family life. A welcoming central hallway sets the tone, with two elegant bay-fronted rooms positioned to either side, currently arranged as bedrooms, though one has served previously as a dining room, music room and secondary sitting room, complete with an open fireplace.
To the rear, the principal sitting room is a wonderfully light-filled space, with large windows and a glazed door opening directly onto the terrace and gardens beyond. A wood-burning stove forms an inviting focal point, creating a warm and comfortable atmosphere during the cooler months.
Further along, a well-appointed family bathroom features both a freestanding bath and separate walk-in shower, complemented by a third double bedroom and a useful study. A guest cloakroom sits conveniently nearby.
Undoubtedly the heart of the home, the kitchen dining room is both stylish and highly functional, fitted with an extensive range of cabinetry and centred around a movable island, offering excellent flexibility. The dining area enjoys delightful views over the gardens, with French doors opening out to provide a seamless connection between inside and out, ideal for both everyday living and entertaining. A separate utility room lies just off the kitchen, providing additional storage and housing the boiler.
And so to bed..........
To the first floor, a further bright and spacious double bedroom enjoys an elevated outlook to the front, with provision in place for the creation of an en suite, should one wish.
Step Outside
Outside, the gardens are a particular highlight, thoughtfully landscaped with areas of lawn, well-stocked borders, fruit trees and mature planting, all enclosed by attractive stone walling. To the front, a generous driveway provides ample parking and leads to a substantial detached double garage, complete with power, lighting and an electric vehicle charging point.
In all, The Chimes presents a rare opportunity to acquire a home of genuine character in a picturesque and well-regarded village setting, with beautifully balanced accommodation and exceptional gardens.
Local Amenities
Helpston is a thriving village, well placed between Stamford (6 miles) and Peterborough (6.5 miles). The village offers a well-regarded primary school, Church, shop/post office, a pub and a village hall. There is a regular bus route to Peterborough and Stamford every 30 minutes throughout the day. There is also a renowned butchers and country store approximately 1 mile outside of the village on the way to Ufford.
The market town of Stamford offers many amenities including a good range of shops, excellent schooling and a produce market which is held every Friday. The Cathedral City of Peterborough also offers a wide range of facilities and excellent train links. (49 minutes to London Kings Cross approx).
Finer Details
Local Authority: Peterborough City Council
Council Tax Band: D
Tenure: Freehold
Possession: Vacant upon completion
EPC Rating: | TBC
EPC Rating Potential: | TBC
Services: Mains water, drainage, and electric are understood to be connected. The property has oil fired central heating. (none tested by the agent).
Agent's note: Please contact agent regarding restrictions or restrictive covenants.
Fixtures & Fittings: Every effort has been made to omit any fixtures belonging to the Vendor in the description of the property and the property is sold subject to the Vendor's right to the removal of, or payment for, as the case may be, any such fittings, etc. whether mentioned in these particulars or not.
Agent's Note
Please see agent regarding restrictions or restrictive covenants.
Viewing
Please contact us on 01780 758 090 if you wish to arrange a viewing appointment for this property, or require further information.
Energy Performance Certificate
Click here to view the Energy Efficiency Rating and Environmental Impact Rating for this property.
Disclaimer
Digby & Finch endeavour to maintain accurate depictions of properties in Virtual Tours, Floor Plans and descriptions, however, these are intended only as a guide and purchasers must satisfy themselves by personal inspection.
Set quietly within the heart of the historic and much-admired village of Helpston, The Chimes is a most appealing dormer bungalow, combining its 1930s origins with later thoughtful additions to create a home of charm, balance and versatility.Occupying a particularly attractive position, the property is framed by beautifully tended, south-westerly facing walled gardens, with the magnificent stained-glass window of St Botolph’s Church providing a truly captivating backdrop. A rare and rather special setting that lends both character and a sense of place.
Step Inside
The accommodation is both generous and flexible, ideally suited to modern family life. A welcoming central hallway sets the tone, with two elegant bay-fronted rooms positioned to either side, currently arranged as bedrooms, though one has served previously as a dining room, music room and secondary sitting room, complete with an open fireplace.
To the rear, the principal sitting room is a wonderfully light-filled space, with large windows and a glazed door opening directly onto the terrace and gardens beyond. A wood-burning stove forms an inviting focal point, creating a warm and comfortable atmosphere during the cooler months.
Further along, a well-appointed family bathroom features both a freestanding bath and separate walk-in shower, complemented by a third double bedroom and a useful study. A guest cloakroom sits conveniently nearby.
Undoubtedly the heart of the home, the kitchen dining room is both stylish and highly functional, fitted with an extensive range of cabinetry and centred around a movable island, offering excellent flexibility. The dining area enjoys delightful views over the gardens, with French doors opening out to provide a seamless connection between inside and out, ideal for both everyday living and entertaining. A separate utility room lies just off the kitchen, providing additional storage and housing the boiler.
And so to bed..........
To the first floor, a further bright and spacious double bedroom enjoys an elevated outlook to the front, with provision in place for the creation of an en suite, should one wish.
Step Outside
Outside, the gardens are a particular highlight, thoughtfully landscaped with areas of lawn, well-stocked borders, fruit trees and mature planting, all enclosed by attractive stone walling. To the front, a generous driveway provides ample parking and leads to a substantial detached double garage, complete with power, lighting and an electric vehicle charging point.
In all, The Chimes presents a rare opportunity to acquire a home of genuine character in a picturesque and well-regarded village setting, with beautifully balanced accommodation and exceptional gardens.
Local Amenities
Helpston is a thriving village, well placed between Stamford (6 miles) and Peterborough (6.5 miles). The village offers a well-regarded primary school, Church, shop/post office, a pub and a village hall. There is a regular bus route to Peterborough and Stamford every 30 minutes throughout the day. There is also a renowned butchers and country store approximately 1 mile outside of the village on the way to Ufford.
The market town of Stamford offers many amenities including a good range of shops, excellent schooling and a produce market which is held every Friday. The Cathedral City of Peterborough also offers a wide range of facilities and excellent train links. (49 minutes to London Kings Cross approx).
Finer Details
Local Authority: Peterborough City Council
Council Tax Band: D
Tenure: Freehold
Possession: Vacant upon completion
EPC Rating: | TBC
EPC Rating Potential: | TBC
Services: Mains water, drainage, and electric are understood to be connected. The property has oil fired central heating. (none tested by the agent).
Agent's note: Please contact agent regarding restrictions or restrictive covenants.
Fixtures & Fittings: Every effort has been made to omit any fixtures belonging to the Vendor in the description of the property and the property is sold subject to the Vendor's right to the removal of, or payment for, as the case may be, any such fittings, etc. whether mentioned in these particulars or not.
Agent's Note
Please see agent regarding restrictions or restrictive covenants.
Viewing
Please contact us on 01780 758 090 if you wish to arrange a viewing appointment for this property, or require further information.
Energy Performance Certificate
Click here to view the Energy Efficiency Rating and Environmental Impact Rating for this property.
Disclaimer
Digby & Finch endeavour to maintain accurate depictions of properties in Virtual Tours, Floor Plans and descriptions, however, these are intended only as a guide and purchasers must satisfy themselves by personal inspection.
Share
Request aValuation
Thinking of selling your property? Request a free property valuation today.

