Details
Allotment Lane, Castor, PE5
OIEO £500,000
(SOLD)
Description
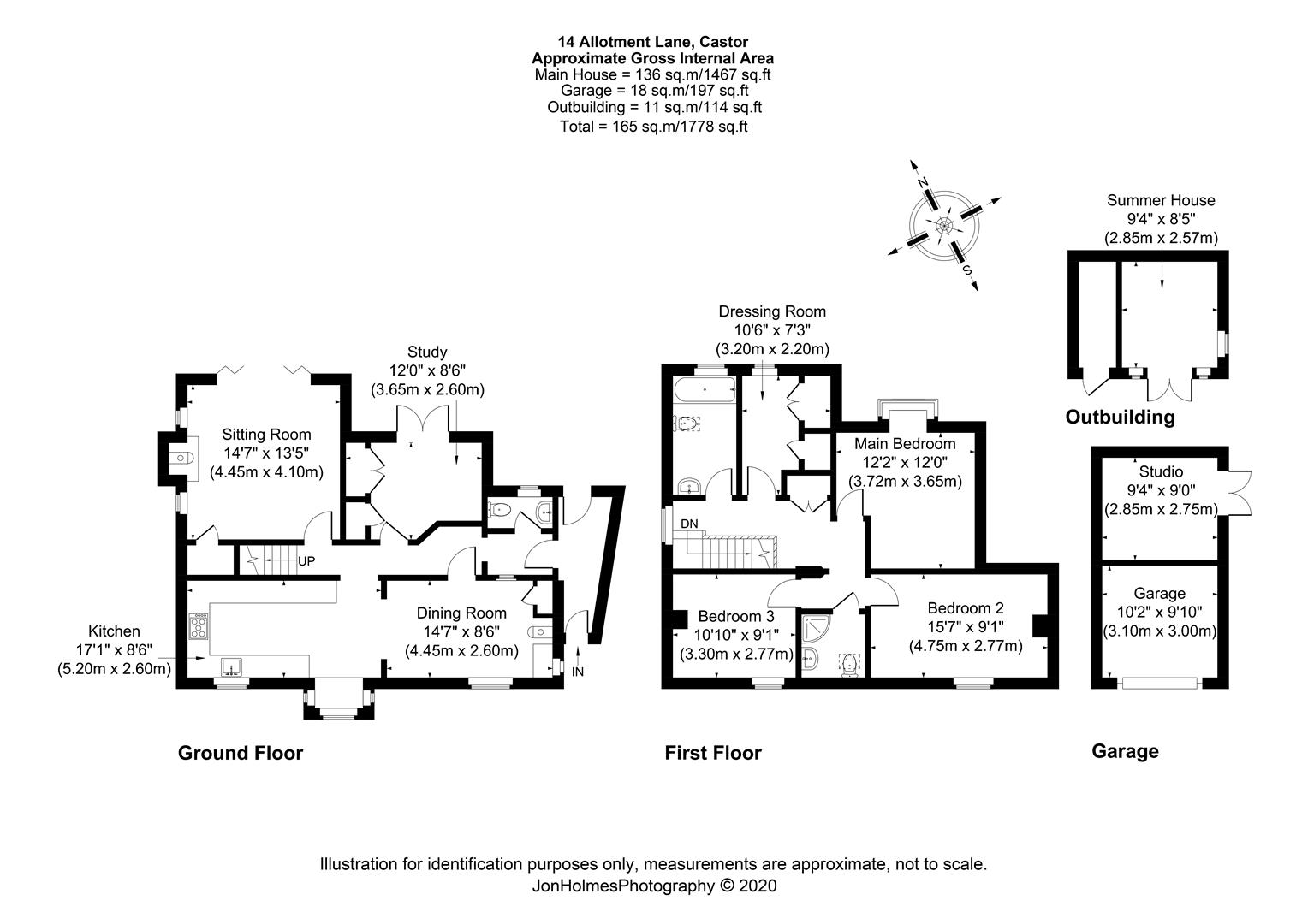
A beautifully appointed Grade II listed character property, set within the desirable village location of Castor. The property has been refurbished throughout and offers immaculately presented and beautifully styledaccommodation arranged over two floors.Outside the property enjoys fabulous south west facing landscaped gardens with several seating and entertainingareas, a garden store, beautiful summer house and a home office. To side of the property is a spacious driveway leading to a generous single garage offering lots of eaves storage above.
Ground Floor
A welcoming hallway has a pretty tiled floor, lots of space for shoes and coat and a door to give access directly to the rear garden. From here, the inner hall with leads to a fabulous dining room which is open to the kitchen.
A Clearview wood burning stove set within a deep chimney breast is flanked by open shelving and cupboards really setting the scene in the dining room. Above the recessed shelving is an unusual circular window, one of the many interesting features of this lovely home.
The dining room is open to a gorgeous kitchen offering extensive floor standing cabinets along with an integrated fridge and dishwasher. A Rangemaster electric range has a five ring induction hob (available by separate negotiation.)
Quartz worksurfaces provide lots of preparation space and the deep butlers sink with instant boiling water tap makes makes life that bit easier!
There are numerous period features throughout the kitchen such as as exposed timbers, polished brick flooring and a cosy window seat with storage beneath.
The peaceful sitting room is located towards the rear of the property and has bi-fold doors flooding the room with natural light, offering pleasant views across the rear garden.
A Clearview wood burning stove sits on an exposed brick hearth with oak beam over, providing a great focal point to the charming room.
There is a useful study/snug just down the hallway with pretty French doors leading to the garden and very deep storage cupboards spanning the length of the room.
Next door is a cloak room with wc and wash hand basin.
First Floor
The staircase with exposed stone wall rises to the first floor where four bedrooms and two bath/shower rooms can be found.
The master bedroom is a lovely room with attractive views over the rear garden.
Bedrooms two and three are generous double rooms with the fourth being a good size single bedroom, currently used as a dressing room with an extensive range of in build cupboard and space for a dressing table.
The family bathroom has a contemporary suite with a panelled bath, wc and wash hand basin.
Further to this is a tiled shower room with shower enclosure, wc and wash hand basin.
Grounds & Gardens
The fabulous rear garden has been fully landscaped and offers several different areas for outdoor entertaining and alfresco dining. The area is very private and offers a large summer house, and a garden store.
The large single garage has been partially sectioned to create a further garden room, which could be ideal as a separate home office, hobbies room or simply a quite space in which to sit and relax.
Local Amenities
The Village of Castor offers excellent amenities including churches, two public houses, coffee shop and convenience store.
The Cathedral City of Peterborough is approximately 6 miles away, which provides a comprehensive range of shopping facilities, together with the main line train station providing frequent high speed services into London Kings Cross.
The Georgian town of Stamford is some 10 miles away and offers a further range of amenities and is home to the well-known George Hotel. Both private and state education is well catered for in the area, with the renowned Castor CE primary school a short walk away. Private schools are situated nearby in Oundle, Oakham, Stamford and Uppingham.
Sporting and leisure facilities (sailing, biking, walking and fishing) are to be found at nearby Ferry Meadows and Rutland Water, with golf courses at Peterborough, Burghley Park and Greetham.
Services
Mains water, electricity, gas and drainage are understood to be connected. There is gas fired central heating. None of the services or appliances have been tested by the agent.
Fixtures & Fittings
Every effort has been made to omit any fixtures belonging to the Vendor in the description of the property and the property is sold subject to the Vendor's right to the removal of, or payment for, as the case may be, any such fittings, etc. whether mentioned in these particulars or not.
Local Authority
Peterborough City Council
Possession
Vacant possession upon completion.
Viewing
Strictly by appointment through Digby & Finch.
Tenure
Freehold for sale by private treaty.
Plans
The site and floor plans forming part of these sale particulars are for identification purposes only. All relevant details should be legally checked as appropriate.
Viewing
Please contact us on 01780 758 090 if you wish to arrange a viewing appointment for this property, or require further information.
Energy Performance Certificate
Click here to view the Energy Efficiency Rating and Environmental Impact Rating for this property.
Disclaimer
Digby & Finch endeavour to maintain accurate depictions of properties in Virtual Tours, Floor Plans and descriptions, however, these are intended only as a guide and purchasers must satisfy themselves by personal inspection.
A beautifully appointed Grade II listed character property, set within the desirable village location of Castor. The property has been refurbished throughout and offers immaculately presented and beautifully styledaccommodation arranged over two floors.Outside the property enjoys fabulous south west facing landscaped gardens with several seating and entertainingareas, a garden store, beautiful summer house and a home office. To side of the property is a spacious driveway leading to a generous single garage offering lots of eaves storage above.
Ground Floor
A welcoming hallway has a pretty tiled floor, lots of space for shoes and coat and a door to give access directly to the rear garden. From here, the inner hall with leads to a fabulous dining room which is open to the kitchen.
A Clearview wood burning stove set within a deep chimney breast is flanked by open shelving and cupboards really setting the scene in the dining room. Above the recessed shelving is an unusual circular window, one of the many interesting features of this lovely home.
The dining room is open to a gorgeous kitchen offering extensive floor standing cabinets along with an integrated fridge and dishwasher. A Rangemaster electric range has a five ring induction hob (available by separate negotiation.)
Quartz worksurfaces provide lots of preparation space and the deep butlers sink with instant boiling water tap makes makes life that bit easier!
There are numerous period features throughout the kitchen such as as exposed timbers, polished brick flooring and a cosy window seat with storage beneath.
The peaceful sitting room is located towards the rear of the property and has bi-fold doors flooding the room with natural light, offering pleasant views across the rear garden.
A Clearview wood burning stove sits on an exposed brick hearth with oak beam over, providing a great focal point to the charming room.
There is a useful study/snug just down the hallway with pretty French doors leading to the garden and very deep storage cupboards spanning the length of the room.
Next door is a cloak room with wc and wash hand basin.
First Floor
The staircase with exposed stone wall rises to the first floor where four bedrooms and two bath/shower rooms can be found.
The master bedroom is a lovely room with attractive views over the rear garden.
Bedrooms two and three are generous double rooms with the fourth being a good size single bedroom, currently used as a dressing room with an extensive range of in build cupboard and space for a dressing table.
The family bathroom has a contemporary suite with a panelled bath, wc and wash hand basin.
Further to this is a tiled shower room with shower enclosure, wc and wash hand basin.
Grounds & Gardens
The fabulous rear garden has been fully landscaped and offers several different areas for outdoor entertaining and alfresco dining. The area is very private and offers a large summer house, and a garden store.
The large single garage has been partially sectioned to create a further garden room, which could be ideal as a separate home office, hobbies room or simply a quite space in which to sit and relax.
Local Amenities
The Village of Castor offers excellent amenities including churches, two public houses, coffee shop and convenience store.
The Cathedral City of Peterborough is approximately 6 miles away, which provides a comprehensive range of shopping facilities, together with the main line train station providing frequent high speed services into London Kings Cross.
The Georgian town of Stamford is some 10 miles away and offers a further range of amenities and is home to the well-known George Hotel. Both private and state education is well catered for in the area, with the renowned Castor CE primary school a short walk away. Private schools are situated nearby in Oundle, Oakham, Stamford and Uppingham.
Sporting and leisure facilities (sailing, biking, walking and fishing) are to be found at nearby Ferry Meadows and Rutland Water, with golf courses at Peterborough, Burghley Park and Greetham.
Services
Mains water, electricity, gas and drainage are understood to be connected. There is gas fired central heating. None of the services or appliances have been tested by the agent.
Fixtures & Fittings
Every effort has been made to omit any fixtures belonging to the Vendor in the description of the property and the property is sold subject to the Vendor's right to the removal of, or payment for, as the case may be, any such fittings, etc. whether mentioned in these particulars or not.
Local Authority
Peterborough City Council
Possession
Vacant possession upon completion.
Viewing
Strictly by appointment through Digby & Finch.
Tenure
Freehold for sale by private treaty.
Plans
The site and floor plans forming part of these sale particulars are for identification purposes only. All relevant details should be legally checked as appropriate.
Viewing
Please contact us on 01780 758 090 if you wish to arrange a viewing appointment for this property, or require further information.
Energy Performance Certificate
Click here to view the Energy Efficiency Rating and Environmental Impact Rating for this property.
Disclaimer
Digby & Finch endeavour to maintain accurate depictions of properties in Virtual Tours, Floor Plans and descriptions, however, these are intended only as a guide and purchasers must satisfy themselves by personal inspection.
Share
Request aValuation
Thinking of selling your property? Request a free property valuation today.

