Details
The Avenue, Nottingham, NG14
Guide price £180,000
(SSTC)
Description
This charming semi-detached period cottage offers a rare opportunity for those seeking a home to fully renovate and make their own. Believed to date from the early 20th century, the property retains characterful features including high ceilings, bay windows and decorative fireplaces, while providing scope for modernisation throughout. With a good-sized garden, private driveway parking and versatile accommodation arranged over two floors plus a loft room, this cottage is brimming with potential.
Accommodation
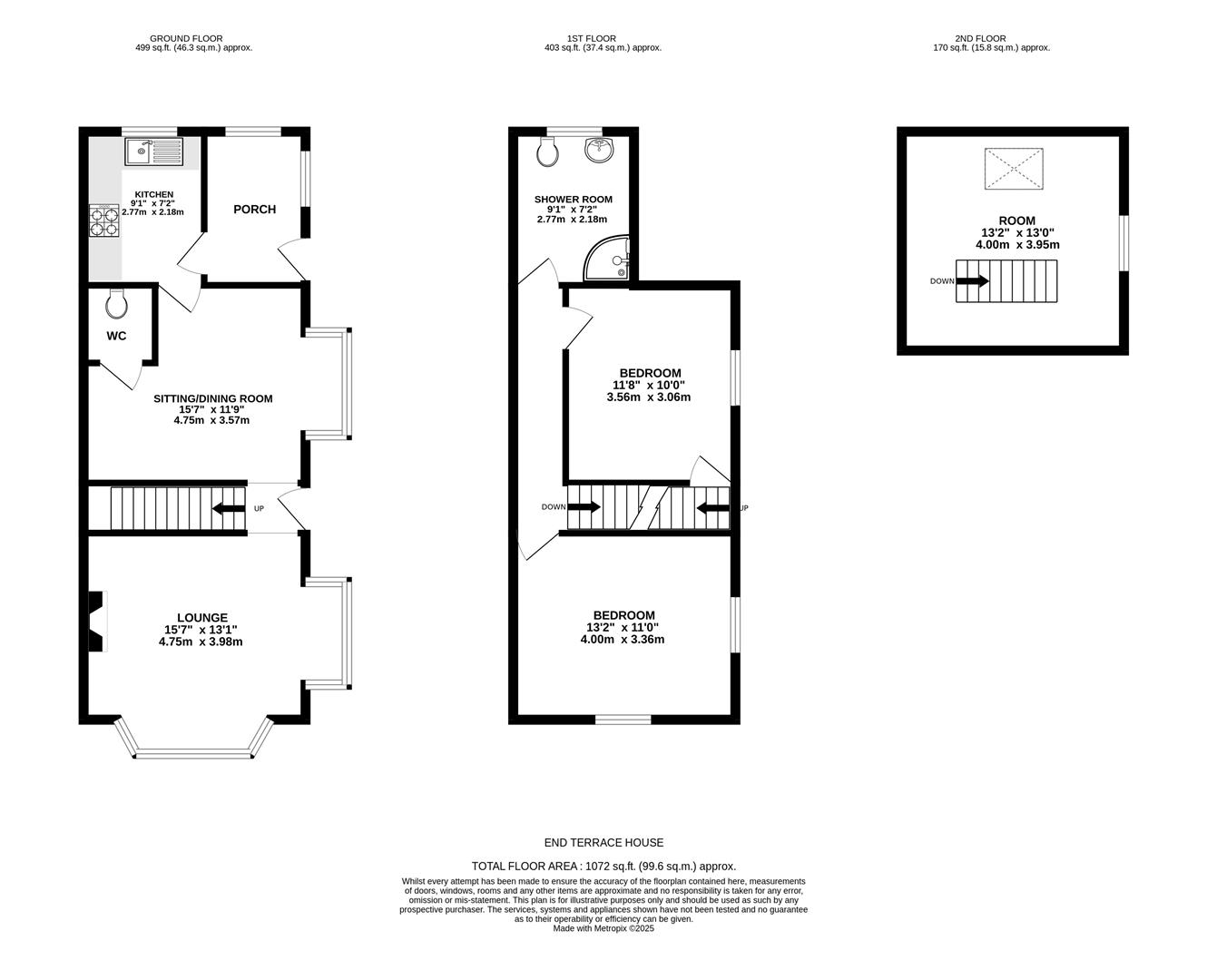
The ground floor is entered via a side door leading to a central hallway with staircase ahead. To the front, the sitting room enjoys a traditional bay window complemented by a secondary square bay to the side, and features an ornate tiled and wood fireplace with matching hearth. On the opposite side of the hall, the dining room mirrors the bay detail and includes a useful under-stairs cupboard together with access to a cloakroom fitted with WC. To the rear, the kitchen is fitted with a range of cabinetry, a double-bowl stainless steel sink and a slim Beko double oven with four-ring gas hob. A utility porch off the kitchen provides under-counter space for appliances and a door to the garden.
Upstairs, the principal bedroom to the front is a comfortable double with a decorative wrought iron fireplace, while the second bedroom is another generous double positioned centrally. From here, a staircase rises to a loft room offering flexible use, currently with space for twin beds, a Velux roof window and eaves storage. To the rear of the first floor is a wet room, fitted with a shower head and curtain, wash hand basin and WC.
Grounds & Gardens
Outside, the property benefits from a good-sized garden, mainly laid to lawn with mature planting including shrubs and trees. Triangular in layout, the garden extends from the driveway and rear of the house to a point at the far end, offering both space and privacy. A gated concrete driveway provides off-road parking for at least two vehicles.
Local Amenities
Gunthorpe is a charming village located in Nottinghamshire, offering a tranquil escape from the hustle and bustle of city life. Known for its picturesque setting along the River Trent, Gunthorpe boasts beautiful rural landscapes, the Unicorn Hotel, and a welcoming community atmosphere.
The village benefits from a lovely primary school and is in the catchment area for Toot Hill secondary school, with private education such as Nottingham High School, Trent College and Ratcliffe College are all within easy commutable distance.
Further amenities such as shops, doctors surgeries , schooling and an abundance of restaurants can be found in the larger neighbouring villages of East Bridgford, Lowdham and Burton Joyce whilst excellent road links provide easy access to Nottingham, Grantham and Newark centres.
Services
Mains water, drainage, gas and electricity are understood to be connected. None of the services or appliances have been tested by the agent.
Fixtures & Fittings
Every effort has been made to omit any fixtures belonging to the Vendor in the description of the property and the property is sold subject to the Vendor's right to the removal of, or payment for, as the case may be, any such fittings, etc. whether mentioned in these particulars or not.
Finer Details
Local Authority: Newark & Sherwood District Council
Council Tax Band: B
Tenure: Freehold
Possession: Vacant possession upon completion.
EPC rating: 59 | D
EPC potential: 75 | C
Plans
The site and floor plans forming part of these sale particulars are for identification purposes only. All relevant details should be legally checked as appropriate.
Viewing
Please contact us on 01159 505 444 if you wish to arrange a viewing appointment for this property, or require further information.
Energy Performance Certificate
Click here to view the Energy Efficiency Rating and Environmental Impact Rating for this property.
Disclaimer
Digby & Finch endeavour to maintain accurate depictions of properties in Virtual Tours, Floor Plans and descriptions, however, these are intended only as a guide and purchasers must satisfy themselves by personal inspection.
This charming semi-detached period cottage offers a rare opportunity for those seeking a home to fully renovate and make their own. Believed to date from the early 20th century, the property retains characterful features including high ceilings, bay windows and decorative fireplaces, while providing scope for modernisation throughout. With a good-sized garden, private driveway parking and versatile accommodation arranged over two floors plus a loft room, this cottage is brimming with potential.
Accommodation
The ground floor is entered via a side door leading to a central hallway with staircase ahead. To the front, the sitting room enjoys a traditional bay window complemented by a secondary square bay to the side, and features an ornate tiled and wood fireplace with matching hearth. On the opposite side of the hall, the dining room mirrors the bay detail and includes a useful under-stairs cupboard together with access to a cloakroom fitted with WC. To the rear, the kitchen is fitted with a range of cabinetry, a double-bowl stainless steel sink and a slim Beko double oven with four-ring gas hob. A utility porch off the kitchen provides under-counter space for appliances and a door to the garden.
Upstairs, the principal bedroom to the front is a comfortable double with a decorative wrought iron fireplace, while the second bedroom is another generous double positioned centrally. From here, a staircase rises to a loft room offering flexible use, currently with space for twin beds, a Velux roof window and eaves storage. To the rear of the first floor is a wet room, fitted with a shower head and curtain, wash hand basin and WC.
Grounds & Gardens
Outside, the property benefits from a good-sized garden, mainly laid to lawn with mature planting including shrubs and trees. Triangular in layout, the garden extends from the driveway and rear of the house to a point at the far end, offering both space and privacy. A gated concrete driveway provides off-road parking for at least two vehicles.
Local Amenities
Gunthorpe is a charming village located in Nottinghamshire, offering a tranquil escape from the hustle and bustle of city life. Known for its picturesque setting along the River Trent, Gunthorpe boasts beautiful rural landscapes, the Unicorn Hotel, and a welcoming community atmosphere.
The village benefits from a lovely primary school and is in the catchment area for Toot Hill secondary school, with private education such as Nottingham High School, Trent College and Ratcliffe College are all within easy commutable distance.
Further amenities such as shops, doctors surgeries , schooling and an abundance of restaurants can be found in the larger neighbouring villages of East Bridgford, Lowdham and Burton Joyce whilst excellent road links provide easy access to Nottingham, Grantham and Newark centres.
Services
Mains water, drainage, gas and electricity are understood to be connected. None of the services or appliances have been tested by the agent.
Fixtures & Fittings
Every effort has been made to omit any fixtures belonging to the Vendor in the description of the property and the property is sold subject to the Vendor's right to the removal of, or payment for, as the case may be, any such fittings, etc. whether mentioned in these particulars or not.
Finer Details
Local Authority: Newark & Sherwood District Council
Council Tax Band: B
Tenure: Freehold
Possession: Vacant possession upon completion.
EPC rating: 59 | D
EPC potential: 75 | C
Plans
The site and floor plans forming part of these sale particulars are for identification purposes only. All relevant details should be legally checked as appropriate.
Viewing
Please contact us on 01159 505 444 if you wish to arrange a viewing appointment for this property, or require further information.
Energy Performance Certificate
Click here to view the Energy Efficiency Rating and Environmental Impact Rating for this property.
Disclaimer
Digby & Finch endeavour to maintain accurate depictions of properties in Virtual Tours, Floor Plans and descriptions, however, these are intended only as a guide and purchasers must satisfy themselves by personal inspection.
Share
Request aValuation
Thinking of selling your property? Request a free property valuation today.

